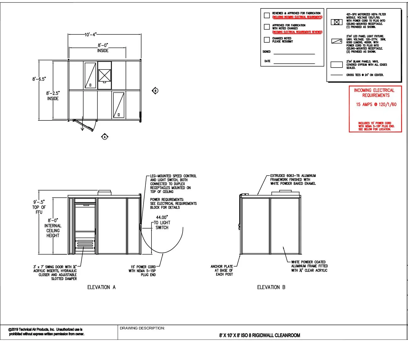
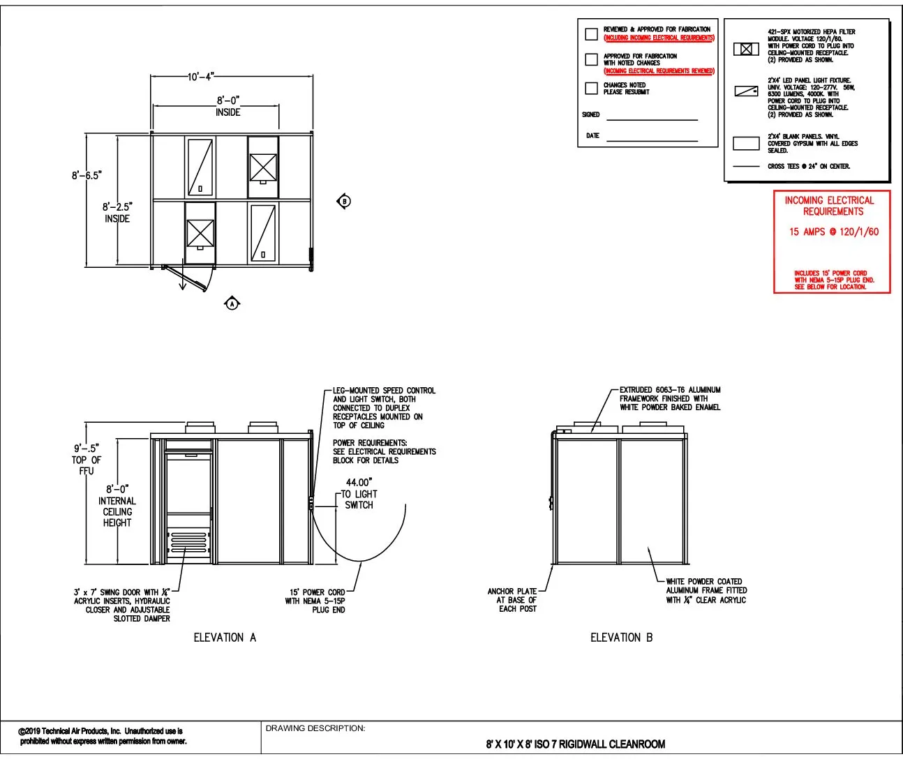
Hardwall Cleanroom - 8'x10'x8'
The rigidwall clean room from Logi-Clean makes high-performance spaces better. First, its well-made wall panels make it different from Logi-Clean’s softwall versions.
In addition, this cleanroom is stronger and lasts longer than a softwall’s curtains. At the same time, it’s easier to move and change than old-style panel systems. Furthermore, it provides better security, controls air pressure precisely, and manages temperature and humidity better. It can also recirculate air. Therefore, if these features match what your business needs, this cleanroom is a perfect choice.
Static Neutralizing Room Ionization Systems available as an option for all of our Cleanrooms.





