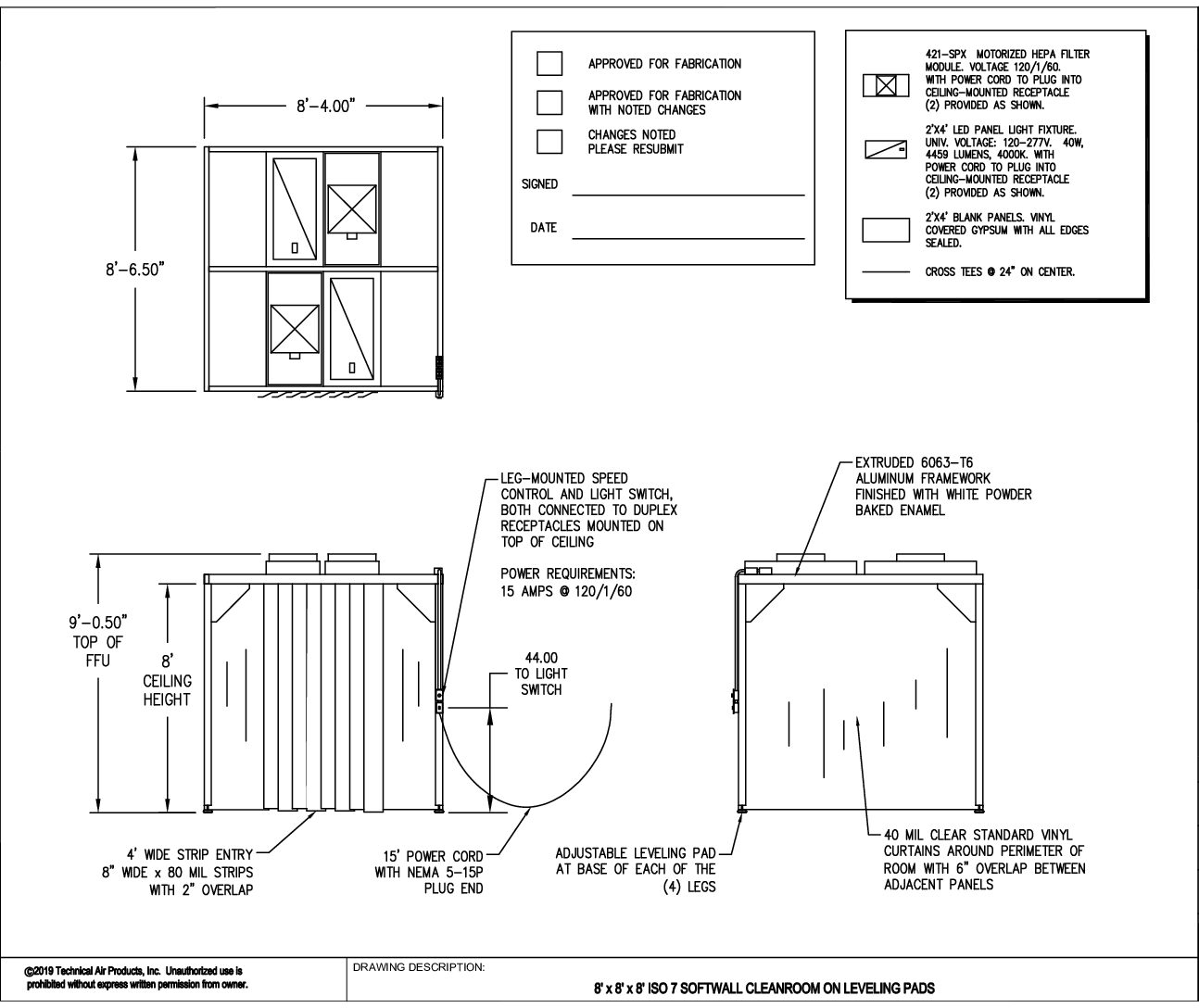
Softwall Cleanroom - 8'x8'x8'
The Softwall Cleanroom provides a flexible and cost-effective way to create a clean air environment. Our unique LogiClean® design allows you to quickly and easily transform any area into a high-performance cleanroom.
We build our softwall cleanrooms for durability, adaptability, and scalability, so they can grow with your business. Their design simplifies both installation and relocation, which makes expansions economical. In fact, you only need a screwdriver and two wrenches to assemble a LogiClean® Softwall Cleanroom’s frame and curtains.
For operations that prioritize flexibility and affordability, our portable modular softwall cleanroom is an ideal choice.
Static Neutralizing Room Ionization Systems available as an option for all of our Cleanrooms.






